Une école qui ouvre de nouvelles perspectives pédagogiques
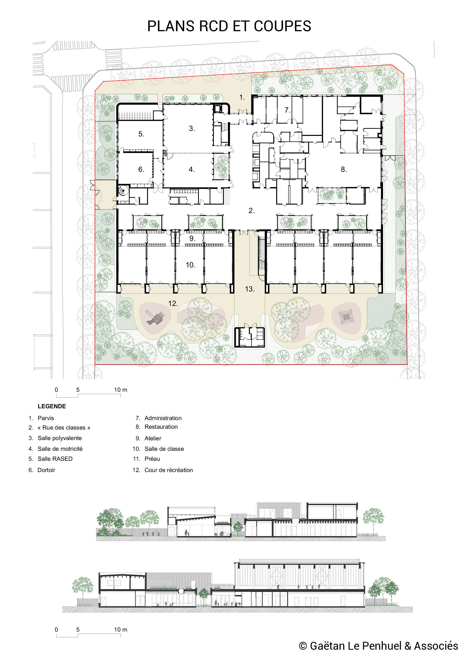
Composé de 8 classes (5 en élémentaire et 3 en maternelle), le groupe scolaire Simone Veil est conçu pour répondre à une volonté d’expérimenter de nouvelles voies visant à favoriser la réussite scolaire des élèves, qui seront suivies pendant 3 ans par des chercheurs universitaires. Donnant au directeur de l’école toute la latitude d’un chef d’établissement pour mettre en place des initiatives pédagogiques, cette approche nouvelle regroupe au sein d’un projet éducatif commun l’accueil scolaire et périscolaire. La conception architecturale s’est donc mise au service de cette ambition, doublée par ailleurs d’une volonté municipale de s’engager dans une construction exemplaire sur le plan environnemental. Parmi les nombreuses idées créatives déployées, qui font que le groupe scolaire ne ressemble à aucun autre, on peut notamment relever :
• Des salles de classe 80 m2 chacune, accueillant aussi le périscolaire et modulables par le biais d’une série d’aménagements (mobilier sur roulettes, cloisons mobiles, etc.) qui permettent de transformer l’espace selon les besoins et les rythmes des enfants.
• Une « rue des 8 classes » aménagée autour de patios au cœur de l’école avec des alcôves, des tables et des bancs pour que les enfants puissent travailler seuls ou en petits groupes.
• Différentes initiatives visant à développer l’apprentissage « hors les murs » et à favoriser l’activité des enfants tout en leur offrant une plus grande connexion à la nature : des cours plantées avec une grande diversité d’essences, accessibles directement depuis les salles de classe prolongées de terrasses, un « toit pour apprendre » avec un jardin d’apprentissage et un plateau sportif couvert, des patios apportant des respirations et de la lumière naturelle au cœur du bâtiment, une cuisine pédagogique, etc.
L’ensemble prend place dans une ambiance intérieure naturelle et enveloppante, où dominent le bois et la terre crue. À l’extérieur côté rue, les façades en pierre massive forme un écran protecteur donnant sur un parvis arboré, dont les abords ont été réaménagés par la municipalité pour renforcer la sécurité d’accès des enfants et favoriser les mobilités douces.
Conçu en concertation avec toutes les parties prenantes et futurs utilisateurs du bâtiment (équipes pédagogiques et techniques, parents d’élèves, municipalité et éducation nationale), le groupe scolaire est un lieu pensé pour encourager la curiosité, la coopération et le plaisir d’apprendre. Partout où cela était possible, nous avons choisi de laisser le bois apparent pour créer un climat stimulant et protecteur. Les premiers retours que nous avons depuis la rentrée le confirment : les enfants et les équipes pédagogiques s’y sentent bien.
Warren Lepolard, Le Penhuel & Associés
Le chantier s’est déroulé en 18 mois, délai court pour ce type d’ouvrage reposant sur une conjugaison de matériaux élaborée. L’anticipation des justifications techniques par le bureau d’études, ainsi que l‘association en un macro-lot du gros-œuvre et de la structure bois ont été deux facteurs clés dans cette réussite.
Warren Lepolard, Le Penhuel & Associés

Un mix constructif assurant qualité structurale et environnementale
Le groupe scolaire est bâti en conjuguant bois, briques de terre crue et pierre porteuse de Bonneuil-en-Valois (carrière francilienne à moins de 60 kilomètres de Tremblay-en-France), l’usage du béton étant circonscrit aux dalles, soubassements et blocs sanitaires.
• Les façades sur rue sont en pierre, tandis que celles donnant à l’intérieur du groupe scolaire, de même que les murs intérieurs, sont en ossature bois. Les murs de refend entre les salles de classe sont en briques de terre crue, surmontées de poutres en CLT afin de répondre aux limites de hauteur réglementaires des murs en terre crue.
• Rez-de-chaussée et R+1 s’appuient sur une structure poteaux poutres en bois lamellé aux assemblages invisibles, avec une sélection d’essences en fonction des espaces : au RDC, les poteaux apparents sont en hêtre et les poutres en épicéa, tandis qu’en R+1 la halle sportive, dont les poteaux sont plus exposés, est formée de poteaux en mélèze et de poutres en épicéa.
• Le plancher haut du rez-de-chaussée est en solivage bois, surmonté de panneaux OSB et d’une dalle en béton de 8 cm. Celui de la halle sportive est en CLT, qui supporte des panneaux photovoltaïques sur toute sa surface de 500 m2. Ceux-ci permettent à l’école de produire plus d’énergie qu’elle n’en consomme et le surplus est réinjecté dans le réseau municipal pour alimenter les équipements avoisinants.
• L’ensemble des aménagements intérieurs, habillages des murs et mobiliers, est en contreplaqué de hêtre.
La construction du groupe scolaire a été réalisée en seulement 18 mois, un délai rendu possible par 3 facteurs clés :
• Une parfaite anticipation de la part du bureau d’étude structure des justifications techniques du mix constructif nécessaires à la validation du bureau de contrôle.
• Un mode de réalisation en macro-lot associant gros œuvre et structure bois, doublée d’une excellente coordination des deux entreprises co-mandataires.
• La préfabrication d’une large partie des structures bois (murs à ossature bois et structure de la halle sportive).
L’apport des bois lamellés au sein du projet
Qualité d’ambiance
Authentiques et naturels, les bois lamellés accompagnés d’aménagements bois créent un environnement propice à l’apprentissage tout en assurant une parfaite qualité sanitaire pour les enfants (classe A ou A+, selon les poutres, sur l’étiquette sanitaire obligatoire pour les produits de construction et de décoration).
Impact environnemental
Le bois lamellé collé et le CLT sont d’excellents stockeurs de carbone, qui contribuent à l’atteinte des objectifs de la RE2020 et à l’atténuation du changement climatique. Ce sont également des matériaux sobres énergétiquement, qui réclament peu d’énergie lors de leur fabrication et de leur transport.
Préfabrication hors-site
Garantie de qualité, la préfabrication dans un environnement maîtrisé des structures en bois lamellé collé ou des panneaux de CLT permet de maximiser les délais de chantier et d’en réduire les nuisances pour le voisinage.
En savoir plus
- Sur l’agence Le Penhuel & Associés: www.lepenhuel.net





